IRRESISTIBLE TOWNHOUSE ON THE CITY'S EDGE Sold!
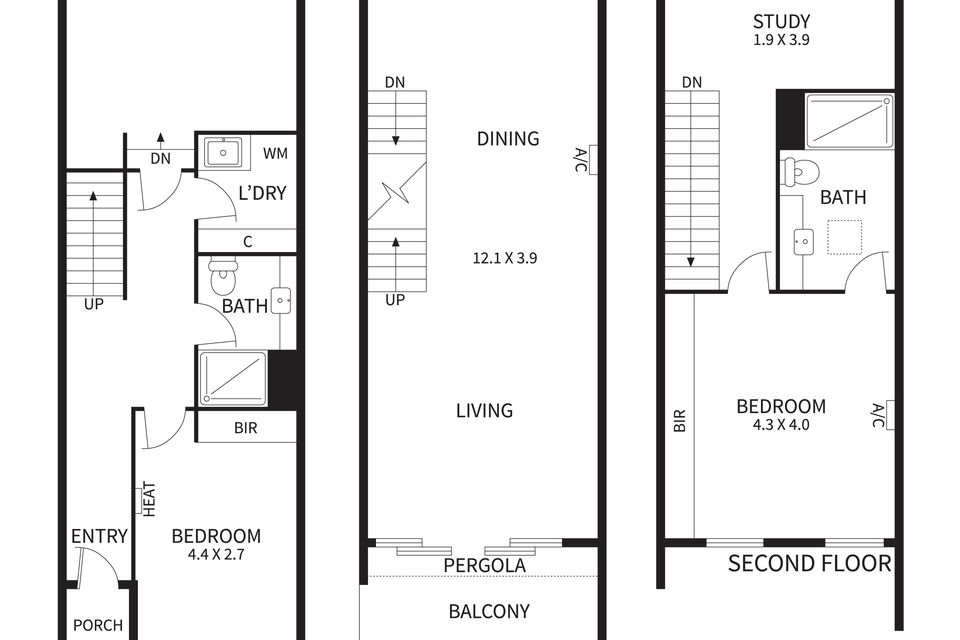
Stunningly placed in an enviable North Melbourne position which is so close to beautiful inner-city parklands while also having the city nearby, this stylish and thoughtful 2 bedroom + study, 2 bathroom tri-level townhouse is a dream opportunity!
Ideal for young professionals who work in the CBD as well as first time buyers and smart investors, this three level home overflows with highlights. The ground floor enjoys a private bedroom with BIR well away from the action, as well as a quality bathroom and laundry. The first floor is where you get to embrace the expansive lounge and dining zone which is open and free-flowing, and the kitchen which delights with an island bench and stainless steel Westinghouse/Bellissimo appliances.
There is also a north-facing balcony which is accessed via the living zone, with this alfresco hub ideal for summer drinks and meals on a balmy summer’s night. The very top level is enhanced by the spacious master bedroom with double BIRs and ensuite, as well as a dedicated study area, while further benefit from reverse cycle heating and cooling, secure alarm, and single remote garage.
So close to Boundary Road Reserve, Buncle Street Playground, Royal Park, North Melbourne Community Centre, Newmarket Plaza shops, iconic cafes including Auction Rooms, University of Melbourne, Debney Meadows Primary School, Mount Alexander 7-12 College, buss, trams, Macauley Station, and Citylink.
Heating & Cooling
- Split-System Air Conditioning
- Split-System Heating
Outdoor Features
- Balcony
- Remote Garage
Indoor Features
- Alarm System
- Built-in Wardrobes
- Dishwasher
- Floorboards
- Study
Eco Friendly Features
- Solar Hot Water



































