Breathtaking French Provincial living in the Balwyn High zone! Sold!
Dazzling with a breathtaking French Provincial exterior, internals that are stunning thanks to beautiful contemporary detail, and a location in one of Melbourne's most coveted school zones, this 5 bedroom + study, 4.5 bathroom home is a family masterpiece that awaits one lucky purchaser.
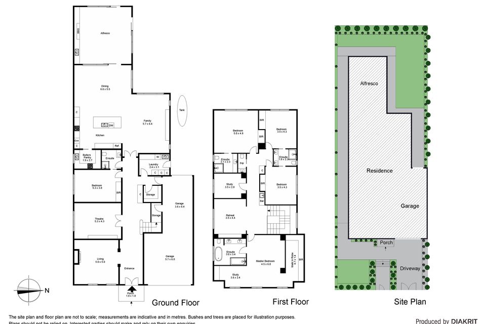
European parquetry floors, soaring ceilings, and stone and marble detail are just the start with this dual level oasis which offers an array of highlights over two wonderful levels. A striking double door entry and wide hallway is your eye-catching first impression, with this entry leading to three amazing downstairs living areas including a formal lounge room with marble gas log fireplace, home theatre for weekly movie nights, and the generous central family and dining zone.
The kitchen is incorporated into this main space and showcases a deep stone island bench, high end stainless steel Miele appliances, and an added butler's kitchen. A bedrooms downstairs plus a full bathroom adds versatility to the layout, while 4 bedrooms upstairs includes the amazing master bedroom which comes with a walk-in robe, study/retreat, and immaculate dual vanity ensuite with freestanding bath. Two of the upstairs bedrooms also have ensuites, with the level further providing a dedicated study/office, living retreat with access to a wet bar, and powder room.
Further embrace a rear alfresco dining zone with BBQ kitchen which extends out from the living zone, dual access laundry, large store room, ducted heating and cooling, ducted vacuum, security system, rear garden, and access to a triple remote garage via a remote security gate.
In the exclusive Balwyn High School zone and close to Balwyn North Primary School, St. Bede's Primary School, Fintona Girls' School, Genazzano FCJ College, Macleay Park, Hislop Reserve, Stradbroke Park, Boroondara Sports Complex, Balwyn Shopping Centre, local shops on Burke Road, Kew Junction shopping, buses, trams, and Eastern Freeway.
Heating & Cooling
- Air Conditioning
- Open Fireplace
Indoor Features
- Alarm System
- Built-in Wardrobes
- Study



























